Agentia Nationala de Administrare Fiscala a publicat luni in Monitorul Oficial ordinul prin care aproba noul model al formularului 307, utilizat de contribuabili pentru declararea sumelor rezultate din ajustarea taxei pe valoare adaugata, in situatia in care beneficiarul transferului de active nu este persoana inregistrata in scopuri de TVA.
Sinteza zilei: 10 de azi avocatnet.ro îți aduce gratuit, zilnic, în căsuța ta de email, un newsletter, ca tu să fii mereu la curent cu cele mai importante noutăți, știri și analize de context.
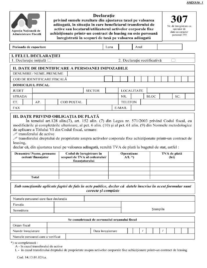
Ordinul ANAF nr. 3.193/2011 pentru aprobarea modelului si continutului formularului (307) „Declaratie privind sumele rezultate din ajustarea taxei pe valoarea adaugata, in situatia in care beneficiarul transferului de active sau locatarul/utilizatorul activelor corporale
fixe achizitionate printr-un contract de leasing nu este persoana inregistrata in scopuri de taxa pe valoarea adaugata”, precum si pentru stabilirea modalitatii de plata a acestor sume a fost publicat in Monitorul Oficial nr. 698, din 3 octombrie 2011.
In situatia in care beneficiarul transferului de active, in calitate de succesor al cedentului in ceea ce priveste ajustarea dreptului de deducere a taxei pe valoarea adaugata, este o persoana impozabila care nu este inregistrata in scopuri de TVA conform art. 153 din Codul fiscal si nu se va inregistra in scopuri de TVA ca urmare a transferului, acesta este obligat sa declare si sa plateasca la bugetul de stat suma rezultata ca urmare a ajustarilor taxei pe valoarea adaugata.
Pentru indeplinirea acestor obligatii, contribuabilii au la dispozitie formularul (307) „Declaratie privind sumele rezultate din ajustarea taxei pe valoarea adaugata, in situatia in care beneficiarul transferului de active nu este persoana inregistrata in scopuri de taxa pe valoarea adaugata”, care fusese aprobat prin Ordinul presedintelui Agentiei Nationale de Administrare Fiscala nr. 2691/2010.
Prin modificarile aduse normelor metodologice de aplicare a Titlului VI din Codul fiscal prin Hotararea Guvernului nr. 150/2011 s-a prevazut, la punctul 61 alin. (9), obligatia persoanei (utilizatorul) care achizitioneaza active corporale fixe printr-un contract de leasing, daca transferul dreptului de proprietate asupra bunurilor are loc dupa scoaterea din evidenta persoanelor inregistrate in scopuri de TVA, de a ajusta taxa deductibila aferenta bunurilor de capital/activelor corporale fixe, altele decat cele de capital.
Potrivit acelorasi dispozitii, prin ordin al presedintelui Agentiei Nationale de Administrare Fiscala se va stabili procedura de declarare si plata a sumelor rezultate din ajustarea taxei.
Mentionam, totodata, ca prin Ordinul ministrului finantelor publice nr.2374/2010 a fost stabilit termenul de declarare si de plata pentru sumele rezultate din ajustarea taxei pe valoarea adaugata, in situatia in care beneficiarul transferului de active nu este o persoana inregistrata in scopuri de TVA, respectiv pana la data de 25, inclusiv, a lunii urmatoare lunii in care are loc transferul de active.
Avand in vedere aceste dispozitii, ANAF a propus utilizarea formularului (307) si pentru noua situatie reglementata, fiind necesara completarea formularului deja aprobat cu noi rubrici aplicabile in aceasta situatie, precum si modificarea intructiunilor de completare.
Persoanele obligate sa depuna declaratia trebuie sa achite taxa de plata organelor fiscale pana la data la care are obligatia depunerii acestei declaratii.
Puteti consulta atasat noul model al formularului 307 si instructiunile de completare.
--
Acest material este destinat exclusiv informării dumneavoastră personale, conform termenilor și condițiilor de furnizare a serviciilor avocatnet.ro. Conform legislației în vigoare, este strict interzisă copierea, reproducerea, redistribuirea, republicarea sau orice altă formă de reutilizare a acestui conținut, integral sau parțial, fără consimțământul scris al avocatnet.ro. Nerespectarea acestor prevederi poate atrage răspunderea civilă, contravențională sau penală.
Comentarii articol (9)